Перенос генератора КЗАТЭ 80А наверх (без ГУР)
| NIVA-FAQ | ФОРУМ | НОВИНКИ FAQ | КАРТА САЙТА | ПОИСК ПО САЙТУ |
| Перенос генератора КЗАТЭ 80А наверх (без ГУР) Автор Brigadir335 |
Пошаговая инструкция для карбюраторного ДВС 1.7 без ГУР.
Кронштейн любезно изготовлен Vlad_aka_SoHm.
- Что нужно:
- — генератор 21214 или аналогичный; — кронштейн крепления генератора 21214-3701650 с двумя гайками и болтами с тонкой шляпкой, для крепления к КИТ комплекту; — КИТ комплект переноса генератора; — ремень генератора длиной 1350 мм; — болт крепления генератора 2110 в сборе; — два болта М8х20 и М8х30 с гайками;
- — четыре болта М5х35 и восемь шайб.
- 1) Снимаем запасное колесо из под капота, откручиваем растяжку, на которой оно лежало.
2) Выкручиваем две шпильки и два болта над шкивом коленвала. Заменяем их на четыре болта большей длины. Если с выкручиванием болтов проблем не возникает, то со шкильками может быть засада. Решить ее нетрудно, можно либо приварить к шпильке болтик, либо подточить шпильку напильником с двух сторон и вывернуть ее пассатижами (идея от Udalilsya). У нас все отвернулось без заморочек!
3) Теперь берем болгарку или напильник и подтачиваем блок двигателя для верхнего крепления кронштейна (болт слева от трамблера, если стоят у водительского крыла). На блоке прилив имеет округлую форму, мы же ее приводим к прямоугольной!
4) Прикрепляем к нашей массивной конструкции кронштейн крепления генератора 21214-3701650:
Тут появляются первые заморочки, кронштейн 214 генератора не должен упираться в выходной штуцер бензонасоса. На КИТовском кронштейне есть три положения установки кронштейна от 214 генератора:
- Мы выбрали среднее, еще возможны варианты: — верхнее (необходим ремень 1375 мм);
- — нижнее (требуется замена бензонасоса на 2108).
- 5) Крепим кронштейн к блоку двигателя.
6) Отсоединяем «-» от АКБ, снимаем ремень с генератора, отсоединяем провода от старого генератора. Расплетаем косу проводки от нижнего генератора до уровня самой АКБ и эл. мотора дворников (мне такой длины хватило, чтобы дотянуть до верхнего генератора) Упаковываем проводку в гофр:
7) Устанавливаем генератор на верхний кронштейн, одеваем ремень. Проверяем соосность шкивов. При необходимости регулируем положение кронштейна от 214 генератора. Устанавливаем натяжную планку. Натягиваем ремень генератора!
Подключаем провода, запускаем ДВС, проверяем напряжение! ( у нас с первого раза не получилось из-за бракованного реле-регулятора.
9) Осматриваем подкапотное пространство на наличие косяков, убедившись в их отсутствие, закрываем капот.
Нива готова к новым приключениям!
04.02.13.
Описание устройства
Пустите двигатель, дайте ему поработать несколько минут, затем, нажав на педаль «газа», доведите обороты коленчатого вала до 3000 мин–1. Включите дальний свет фар, обогрев заднего стекла, вентилятор отопителя.
Замерьте напряжение на выводах аккумуляторной батареи, которое должно быть выше 13,2 В для генератора 9412.3701 и 13,6 В для генератора 371.3701.
Если это не так, неисправны регулятор напряжения со щеточным узлом, обмотки генератора (обрыв или замыкание) или окислены контактные кольца обмотки возбуждения.
Снятый регулятор напряжения генератора 9412.3701 можно проверить, подключив между щетками лампу (1–5 Вт, 12 В), а к выводам «D » и «масса» – источник питания (только постоянного тока, «минус» – к «массе»!), вначале напряжением 12 В, а затем 15–16 В.
В первом случае лампа должна гореть, во втором – нет. Если лампа горит в обоих случаях, в регуляторе – пробой, если не горит – обрыв или нарушен контакт между щетками и выводами регулятора. В обоих случаях регулятор следует заменить. Для проверки регулятора генератора 371.3701 источник тока следует подключать к выводам «Б» и «В» («плюс») и «массе» («минус»).

«Плюс» батареи через лампу (1–5 Вт, 12 В) подсоедините к выводу «В » генератора 9412.3701 (к выводу «30» генератора 371.3701), а «минус» – к его корпусу.
Если лампа горит, то и в блоке «положительных», и в блоке «отрицательных» вентилей имеется короткое замыкание.
Для проверки замыкания в «положительных» вентилях «плюс» батареи через лампу соедините с выводом «В » генератора 9412.3701 (с выводом «30» генератора 371.3701), а «минус» – с выводом одной из фазных обмоток статора. Если лампа горит, пробиты один или несколько положительных вентилей.
Для проверки замыкания в «отрицательных» вентилях «плюс» батареи через лампу соедините с выводом одной из фазных обмоток статора, а «минус» – с корпусом генератора. Если лампа горит, пробиты один или несколько отрицательных вентилей или обмотки статора замыкают на корпус генератора.
Чтобы исключить замыкание обмоток, генератор снимают с автомобиля и, отсоединив обмотки от регулятора напряжения и выпрямительного блока, проверяют их замыкание на «массу» лампой или омметром. Вентили генератора можно также проверить омметром, не подключая аккумулятор и контрольную лампу.

Замыкание дополнительных диодов можно проверить, подключив «плюс» батареи через лампу к выводу «D» генератора 9412.3701 (к выводу «61» генератора 371.3701), а «минус» – к выводу одной из фазных обмоток статора (к одному из болтов крепления выпрямительного блока). Если лампа горит, один или несколько дополнительных диодов пробиты.
Обрыв в дополнительных вентилях можно определить по низкому напряжению на штекере «D» генератора 9412.3701 или штекере «61» генератора 371.
3701 (ниже 14 В) при малой и средней частоте вращения ротора генератора.
Определить исправность каждого диода (основного или дополнительного) можно только на снятом выпрямительном блоке омметром или контрольной лампой. Выпрямительный блок при выходе из строя рекомендуется заменять в сборе.
Допускается замена отдельных вентилей, однако для основных вентилей потребуется их перепрессовка в держателе – операция, требующая аккуратности и навыка.

На автомобилях Нива 21214 стоит генератор типа 9412.3701, на ВАЗ 21213 – типа 371.3701, на Ниве Шевроле установлен генератор 2123. Все они представляют собой электромашины переменного тока с электромагнитным возбуждением, имеющие встроенный выпрямительный блок с кремниевыми диодами и электронным регулятором напряжения. Максимальный ток, который вырабатывает генераторный узел типа 9412.3701, составляет 80 А, напряжение — 13,2 — 14,7 В, вращение – правое.
Конструкция узла 21214
Статор имеет 3-х фазную обмотку, одни из концов которой соединяются с выпрямительным блоком, состоящим из 6 диодов. Из них — 3 диода отрицательные, 3 — положительные. Соответственно полярности они впрессованы в пластины. Вся конструкция составляет выпрямительный блок, который расположен на тыльной крышке генераторного узла закрытого защитным кожухом.
В конструкцию узла входят также контактные кольца, щетки. На тыльной стороне задней крышки находится щеткодержатель, который конструктивно соединен с регулятором напряжения. В выпрямителе находится конденсатор, обеспечивающий защиту электросети от скачков напряжения.
Вывод «В» генераторного агрегата должен быть подключен к плюсовой клемме АКБ, а минус аккумулятора к массе автомобиля. Если подключение будет неправильным, это приведет к пробою диодов.

Генератор Нива 21214
Демонтаж и подключение генератора на Нивах 2121: поэтапная инструкция
Описание устройства
На автомобилях Нива 21214 стоит генератор типа 9412.3701, на ВАЗ 21213 – типа 371.3701, на Ниве Шевроле установлен генератор 2123. Все они представляют собой электромашины переменного тока с электромагнитным возбуждением, имеющие встроенный выпрямительный блок с кремниевыми диодами и электронным регулятором напряжения. Максимальный ток, который вырабатывает генераторный узел типа 9412.3701, составляет 80 А, напряжение — 13,2 — 14,7 В, вращение – правое.
Конструкция узла 21214
Крышки узла крепятся со статором с помощью 4-болтов. В крышках установлены подшипники. В них осуществляется вращение вала ротора. В переднем подшипнике внутренняя обойма зажата гайкой вместе с упорным кольцом и шайбой. В задней крышке также запрессован 2-й подшипник.
Статор имеет 3-х фазную обмотку, одни из концов которой соединяются с выпрямительным блоком, состоящим из 6 диодов. Из них — 3 диода отрицательные, 3 — положительные. Соответственно полярности они впрессованы в пластины. Вся конструкция составляет выпрямительный блок, который расположен на тыльной крышке генераторного узла закрытого защитным кожухом.
В конструкцию узла входят также контактные кольца, щетки. На тыльной стороне задней крышки находится щеткодержатель, который конструктивно соединен с регулятором напряжения. В выпрямителе находится конденсатор, обеспечивающий защиту электросети от скачков напряжения.
Основные неисправности и способы их устранения
Проверка исправности агрегата выполняется с помощью мультиметра. После того, как будет запущен мотор, напряжение на клеммах аккумулятора должно составлять 13,6 В. Если значение выше или ниже, это говорит об обрыве или замыкании обмоток, окислении контактных колец, неисправности в щеточном узле, регуляторе напряжения.
Генераторный узел может плохо работать из-за слабого натяжения ремня или его обрыве. В этом случае нужно отрегулировать натяжение или заменить ремень. Неисправный регулятор напряжения, подлежит замене. Если обнаружен пробой, замыкание, повреждение обмоток ротора, его следует заменить. При обрыве или замыкании в обмотках статора требует его замены. При повреждении диодов меняется выпрямительный блок.
Нюансы переноса генератора
Недостатком отечественных внедорожников Нива является расположение генераторного агрегата — внизу моторного отсека. На него постоянно попадают загрязнения при передвижении по бездорожью, кроме того постоянно капает ОЖ. Решает проблему перенос генератора наверх (автор видео – SARTANETS).
Для переноса понадобится набор ключей, кронштейн, болты крепления, клиновой ремень. Сделать кронштейн переноса генератора можно своими руками по приведенному ниже чертежу.
Чертеж самодельного кронштейна
Последовательность действий при переносе:
- Демонтируем пропеллер, помпу и снимаем ремень.
- Открутив штатный кронштейн, можно снимать генератор.
- Спиливаем наплыв вокруг борта ГБЦ и на блоке цилиндров.
- Затем следует выкрутить два болта и две шпильки.
- Далее устанавливается узел на новый кронштейн и производится окончательная сборка.
Таким образом, перенести генераторный узел наверх несложно.
Руководство по снятию и подключению генератора
Для снятия агрегата необходимо подготовить набор инструментов: ключи на «10» и «19», трещетки с головками, молоток и небольшой удлинитель.
Процесс состоит из следующих действий:
- В первую очередь снимается отрицательная клемма с АКБ.
- Далее необходимо демонтировать защиту двигателя и правый брызговик.
- Затем с помощью молотка аккуратно выбиваем крепежный болт и вынимаем.
- На следующем этапе нужно отсоединить все провода, идущие к генератору: штекер и провода затянутые гайкой.
- Затем откручивается вернее крепление, на котором находится натяжитель ремня.
- Сняв ремень узел можно демонтировать через отверстие, которое образовалось после снятия защиты.
- После замены или ремонта агрегат устанавливаем на место в обратном порядке.
Цена вопроса
Генератор ВАЗ 21214 имеет хорошую ремонтоспособность, что позволяет значительно экономить средства, если вовремя делать замену изношенных или поломанных деталей.
Если менять агрегат в сборе, то стоимость замены выйдет следующая:
- генератор 21214 – 3125 руб.;
- нижнее крепление – 133 руб.;
- болт крепления — 53 руб.;
- натяжная планка – 55 руб.;
- реле РС-527 – 57 руб.
Как заменить жидкость ГУР Chevrolet Niva
Сама система ГУР является гидравлической системой Chevrolet Niva, частью механизма рулевого управления, чтобы было легче крутить руль и задавать траекторию движения. При отказе ГУР управлять автомобилем возможно, но руль будет тяжело поворачивать, он станет тяжелым.
![]() |
Уровень жидкости ГУР в Chevrolet Niva можно определить по отметкам на расширительном пластмассовом бачке ГУР. В ходе эксплуатации жидкость ГУР Шевроле Нива может протекать в различных местах, чаще всего через шланги. В результате этого уровень масла ГУР будет падать.
Езда без жидкости в гидроусилителе Шевроле Niva подвергает риску поломки насоса ГУР, который стоит приличных денег, так как он станет работать насухую. Вследствие этого он получит серьезные повреждения и выйдет из строя. Насос ГУР в Chevrolet Niva начинает работать, как только вы завели авто. Если ваш Chevrolet Niva остался без масла в системе ГУР, то лучшим решением будет вызвать эвакуатор.
![]() |
Интенсивная эксплуатация Шевроле Нива делает цвет масла ГУР со временем более темным, часто с запахом гари. Это повод задуматься о ее замене. Перегрев масла часто происходит при длительной фиксации руля в крайнем положении, вплоть до его закипания, давление в этом случае максимальное. Не стоит также оставлять авто при парковке на длительное время с вывернутым до упора рулем.
Быстрая профилактика и осмотр ГУР Chevrolet Niva включает в себя: контроль уровня масла ГУР и его качества в расширительном бачке ГУР, проверку натяжения ремня привода на насос ГУР Шевроле Нива, оценку состояния шлангов — трещины, подтеки, запотевание, а также поиск протечек в местах соединений элементов ГУР.
Заменить жидкость в гидроусилителе Chevrolet Niva можно двумя способами:
- частичная замена жидкости ГУР Шевроле Niva.
- полная замена жидкости ГУР Шевроле Niva.
Для частичной замены масла ГУР потребуется шприц (с трубкой) и само масло, столько, чтобы по окончанию работ оно перестало быть темным.
![]() |
Частичная замена жидкости ГУР в Chevrolet Niva:
- Откручиваем крышку расширительного бачка ГУР Шевроле Нива.
- Шприцом с трубкой полностью откачиваем из бачка ГУР жидкость.
- Заливаем в бачок новую жидкость, до уровня MAX.
- Заводим двигатель и крутим рулем влево-вправо до крайнего положения.
- Глушим двигатель и повторяем пункта №1 вновь, пока не получим требуемый результат — светлое масло.
Следующий метод замены масла ГУР в Шевроле Нива позволит добиться практически 100%-ой замены.
Полная замена жидкости ГУР в Chevrolet Niva:
Принцип работы системы гидравлического управления
В ролике ниже вы можете понаблюдать за тем, как работает установленный самостоятельно гидроусилитель руля (автор видео — Владислав Мантула).
Рег.: 07.04.2005Тем / Сообщений: 8 / 439Откуда: МоскваВозраст: 20Авто: 21213 2000 г.в.
Что предпочтительнее и почему, если не обращать внимание на разницу в цене?
Рег.: 02.02.2005Тем / Сообщений: 16 / 769Откуда: Москва, Чертаново.Возраст: 57Авто: 2121395
Я , если бы небыло жалко бабок на свою старушку ставил бы ЭУР однозначно, как мне кажется надёжнее и ставить гораздо проще.
Рег.: 28.07.2005Тем / Сообщений: 1 / 2646Откуда: ИвановоВозраст: 43Авто: Нивка2121. г.в. затертый1,9i и прочий мелкий тюнинг Мурзик МВ 300TD 93г.в.
Рег.: 06.12.2004Тем / Сообщений: 628 / 51730
rdoctor: ГУР, в отличие от ЭУР, демпфирует передачу ударов от колес на руль — при наезде на выбоину на скорости руль не будет вырывать из рук. Собственно, это главный (и едва ли не единственный) плюс ГУРа.ЭУР использует штатный рулевой редуктор. С усилителем ты чаще будешь крутить колеса на неподвижной машине, что сократит ресурс штатного РР. С ГУРом ставится свой редуктор.
А в остальном — у ЭУРа одни плюсы. Цена, простота установки. Да и то, что при неисправности ЭУР получишь просто штатное рулевое, а не едва проворачиваемый руль (хотя про неисправности нашего ГУРа слышать и не приходилось).
А вот вопрос..Наш Нивский ГУР меняет усилие на руле в зависимости от скорости, или нет?Хошется чтоб с увеличением скорости руль деревенел, а не оставался ватным. На сколько я понял- ЭУР отслеживает скорость (не усёк правда нагружает ли он руль с ростом оной?)А ГУР? Он только разгружает? Или всёж отслеживает? (чем кстати отслеживает, если отслеживает? )
Народ, отпишитесь кто ниво эур устанавливал, как он по качеству?Хочу купить, выходит выгоднее чем приоровский и замок, руль и подруливые не нужно менять, подходит всё родное.Разница только что у приоровского есть регулировка по высоте.
Как же работает гидроусилитель руля? Его основным элементом является насос, который с помощью ремня от коленчатого вала засасывает масло и нагнетает его в распределитель. Последний, в свою очередь, отслеживает усилие, прикладываемое к рулю, и с помощью торсиона (следящего устройства) помогает поворачивать ведущие колеса. При движении по прямой торсион не закручивается, поэтому каналы распределителя перекрыты и масло сливается назад в бачок.
ГУР чаще всего приносит пользу при парковке и на поворотах, облегчая работу рук в три раза. Также можно говорить о том, что механизм ослабляет передачу на рулевое управление микроударов от поверхности дороги. Полезен механизм и при резком падении давления в шинах. К минусам гидроусилителя руля относят то, что он мешает «чувствовать машину», поэтому конструкторам нужно добиться компромисса между информативностью и тугостью баранки.
Иностранные производители проводят массу исследований для того, чтобы сделать гидроусилитель легким на небольшой скорости и упругим — на высокой. Для этого в немецкие гидроусилители от компании ZF ставятся модуляторы давления, которые с ростом скорости ограничивают давление масла в рабочем контуре. Кроме того, допустимы схемы с приводом ГУР от электромотора, что дает возможность изменять производительность насоса в соответствии с вращениями электропривода. Иногда еще меняют и передаточное отношение.
Демонтаж и подключение генератора на Нивах 2121: поэтапная инструкция

На автомобилях Нива 21214 стоит генератор типа 9412.3701, на ВАЗ 21213 – типа 371.3701, на Ниве Шевроле установлен генератор 2123.
Все они представляют собой электромашины переменного тока с электромагнитным возбуждением, имеющие встроенный выпрямительный блок с кремниевыми диодами и электронным регулятором напряжения.
Максимальный ток, который вырабатывает генераторный узел типа 9412.3701, составляет 80 А, напряжение — 13,2 — 14,7 В, вращение – правое.
Конструкция узла 21214
Крышки узла крепятся со статором с помощью 4-болтов. В крышках установлены подшипники. В них осуществляется вращение вала ротора. В переднем подшипнике внутренняя обойма зажата гайкой вместе с упорным кольцом и шайбой. В задней крышке также запрессован 2-й подшипник.
Статор имеет 3-х фазную обмотку, одни из концов которой соединяются с выпрямительным блоком, состоящим из 6 диодов. Из них — 3 диода отрицательные, 3 — положительные. Соответственно полярности они впрессованы в пластины. Вся конструкция составляет выпрямительный блок, который расположен на тыльной крышке генераторного узла закрытого защитным кожухом.
В конструкцию узла входят также контактные кольца, щетки. На тыльной стороне задней крышки находится щеткодержатель, который конструктивно соединен с регулятором напряжения. В выпрямителе находится конденсатор, обеспечивающий защиту электросети от скачков напряжения.

Основные неисправности и способы их устранения
Проверка исправности агрегата выполняется с помощью мультиметра. После того, как будет запущен мотор, напряжение на клеммах аккумулятора должно составлять 13,6 В. Если значение выше или ниже, это говорит об обрыве или замыкании обмоток, окислении контактных колец, неисправности в щеточном узле, регуляторе напряжения.
Генераторный узел может плохо работать из-за слабого натяжения ремня или его обрыве. В этом случае нужно отрегулировать натяжение или заменить ремень. Неисправный регулятор напряжения, подлежит замене.
Если обнаружен пробой, замыкание, повреждение обмоток ротора, его следует заменить. При обрыве или замыкании в обмотках статора требует его замены. При повреждении диодов меняется выпрямительный блок.
Нюансы переноса генератора
Недостатком отечественных внедорожников Нива является расположение генераторного агрегата — внизу моторного отсека. На него постоянно попадают загрязнения при передвижении по бездорожью, кроме того постоянно капает ОЖ. Решает проблему перенос генератора наверх (автор видео – SARTANETS).
Для переноса понадобится набор ключей, кронштейн, болты крепления, клиновой ремень. Сделать кронштейн переноса генератора можно своими руками по приведенному ниже чертежу.
Чертеж самодельного кронштейна
Последовательность действий при переносе:
- Демонтируем пропеллер, помпу и снимаем ремень.
- Открутив штатный кронштейн, можно снимать генератор.
- Спиливаем наплыв вокруг борта ГБЦ и на блоке цилиндров.
- Затем следует выкрутить два болта и две шпильки.
- Далее устанавливается узел на новый кронштейн и производится окончательная сборка.
1. Схематическое изображение откручивания крепежного материала2. Авто со снятым ремнем3. Агрегат на новом месте
Таким образом, перенести генераторный узел наверх несложно.
Руководство по снятию и подключению генератора
Для снятия агрегата необходимо подготовить набор инструментов: ключи на «10» и «19», трещетки с головками, молоток и небольшой удлинитель.
Процесс состоит из следующих действий:
- В первую очередь снимается отрицательная клемма с АКБ.
- Далее необходимо демонтировать защиту двигателя и правый брызговик.
- Затем с помощью молотка аккуратно выбиваем крепежный болт и вынимаем.
- На следующем этапе нужно отсоединить все провода, идущие к генератору: штекер и провода затянутые гайкой.
- Затем откручивается вернее крепление, на котором находится натяжитель ремня.
- Сняв ремень узел можно демонтировать через отверстие, которое образовалось после снятия защиты.
- После замены или ремонта агрегат устанавливаем на место в обратном порядке.
Схема подключения к электросети
Цена вопроса
Генератор ВАЗ 21214 имеет хорошую ремонтоспособность, что позволяет значительно экономить средства, если вовремя делать замену изношенных или поломанных деталей.
Если менять агрегат в сборе, то стоимость замены выйдет следующая:
- генератор 21214 – 3125 руб.;
- нижнее крепление – 133 руб.;
- болт крепления — 53 руб.;
- натяжная планка – 55 руб.;
- реле РС-527 – 57 руб.
Руководство по снятию и подключению генератора
Для снятия агрегата необходимо подготовить набор инструментов: ключи на «10» и «19», трещетки с головками, молоток и небольшой удлинитель.
Процесс состоит из следующих действий:
- В первую очередь снимается отрицательная клемма с АКБ.
- Далее необходимо демонтировать защиту двигателя и правый брызговик.
- Затем с помощью молотка аккуратно выбиваем крепежный болт и вынимаем.
- На следующем этапе нужно отсоединить все провода, идущие к генератору: штекер и провода затянутые гайкой.
- Затем откручивается вернее крепление, на котором находится натяжитель ремня.
- Сняв ремень узел можно демонтировать через отверстие, которое образовалось после снятия защиты.
- После замены или ремонта агрегат устанавливаем на место в обратном порядке.
Схема подключения к электросети
Цена вопроса
Генератор ВАЗ 21214 имеет хорошую ремонтоспособность, что позволяет значительно экономить средства, если вовремя делать замену изношенных или поломанных деталей.
Если менять агрегат в сборе, то стоимость замены выйдет следующая:
- генератор 21214 – 3125 руб.;
- нижнее крепление – 133 руб.;
- болт крепления — 53 руб.;
- натяжная планка – 55 руб.;
- реле РС-527 – 57 руб.
Всего: 3423 руб.
Загрузка …
Схема переноса генератора наверх в Ниве ВАЗ-21213
Нива имеет прекрасную проходимость и может составить конкуренцию многим современным джипам иностранного производства. Вместе с тем из-за такого существенного недостатка большинство собственников данных автомобилей испытывают значительные неудобства, в связи с чем принимают решение об усовершенствовании этого транспортного средства. Сделать это можно в том случае, если перенести генератор вверх. Дело в том, что во время испытания ВАЗ-21213 на проходимость по пересеченной местности в генератор может попадать песок, грязь, камни и вода. Однако существует и еще один, достаточно весомый недостаток – на генератор постоянно попадает охлаждающая жидкость. Решить эту проблему можно, если прибегнуть к вышеуказанному методу. Но как сделать это правильно?
Следует понимать, что если вы используете ваш ВАЗ-21213 в большинстве случаев для поездок по городу либо трассе, то в переносе генератора нет никакой необходимости. Но если Нива используется для езды по бездорожью, то без этого просто не обойтись.
Характеристики штатного генератора
Основные характеристики генератора, установленного заводом-производителем в Нива 21214, 21213, 2121, будут рассмотрены на примере генератора типа 9412.3701:
- ток – 80А;
- напряжение – 13,2 В,
- вращение – правое.
Стоимость штатных моделей электрогенераторов составляет 5-7 тыс. рублей. При возникновении поломки агрегата возможна замена его составных частей либо полная замена на оригинал или аналоги. Цена наиболее распространенных представлена в таблице.
| Аналог | Артикул | Стоимость, в рублях |
| Генератор ВАЗ-2104-21073,21214 | 9412.3701-03 | 5900 |
| Генератор ВАЗ-2104-21073,21214 | 372.3701-03/05 | 3800 |
| Генератор ВАЗ 2121-21213,21214 | 9412.3701 | 5450 |
Из таблицы видно, что в процессе замены генератора на Ниве можно отдать предпочтение более дешевому универсальному аналогу.
| Аналог | Артикул | Стоимость, в рублях |
|---|---|---|
| Генератор ВАЗ-2104-21073,21214 | 9412.3701-03 | 5900 |
| Генератор ВАЗ-2104-21073,21214 | 372.3701-03/05 | 3800 |
| Генератор ВАЗ 2121-21213,21214 | 9412.3701 | 5450 |
Натяжение ремня генератора ваз 21214 инжектор
Натяжение ремня проверяем по его прогибу между шкивами агрегатов. 1. При нормальном натяжении ремня его прогиб под усилием 98Н (10 кгс) должен составлять 10–15 мм между шкивами насоса и генератором
2
. . или 12–17 мм между шкивами насоса и коленчатого вала. Регулируем натяжение ремня смещением генератора (при ослабленных гайках его крепления): от двигателя для увеличения натяжения или к двигателю — для уменьшения натяжения.3. Для замены ремня ослабляем гайку крепления генератора к натяжной планке головкой «на 17» на карбюраторном двигателе.4. . или головкой «на 13» – на впрысковом двигателе. Смещаем генератор к блоку цилиндров для ослабления натяжения ремня.5. Сдвигаем генератор, воздействуя на него отверткой как рычагом в прорези натяжной планки:
на карбюраторном двигателе;
6. на двигателе ВАЗ-21214.
Устанавливаем ремень в обратной последовательности. Поворачиваем коленчатый вал по часовой стрелке на два оборота и проверяем натяжение ремня. Чрезмерное натяжение ремня вызывает повышенные нагрузки на подшипники генератора и насоса.
Оригинальный ремень генератора на ВАЗ 2121 может прослужить водителю порядка 100 тысяч километров пробега по отечественным дорогам, такие сообщения поступали от многих владельцев народного любимца. Но не всегда получается найти оригинальный ремень генератора на автомобильном рынке, вся проблема в том, что продавцам свойственно обманывать доверчивых клиентов и срок службы при-подвального ремня может сократиться в 2-3 раза. Сегодня мы расскажем как заменить ремень генератора на Ниве своими руками в гаражных условиях.
Когда новый ремень генератора у Вас уже на руках, то Вам требуется подготовить рожковый ключ на 17 и удобное место для ремонта. Как говорится в народе, оставлю это видео здесь.
Видео. Замена генератора и приводного ремня своими руками
1. На изображении показано как правильно ослабить гайку натяжителя ремня генератора.

2. Когда гайка немного ослаблена, нужно отодвинуть генератор автомобиля в сторону, чтобы иметь хороший доступ к ремню. Стрелка, в какую сторону нужно подвинуть генератор, указана на фотографии.

3. Снимаем ремень со шкива помпы, более подробней смотрите на изображение.

4. Ремень генератора полностью снят, теперь можно приступать к установке нового.

Стоимость нового ремня около 100 рублей. Производим установку в обратной последовательности, так же не забудьте про нятяжение ремня генератора, про данную операцию можно посмотреть видео выше.
Недостаточное натяжение ремня генератора возможен не только его слёт. Если ремень проскальзывает, то не используется вся его эффективность. А как мы знаем, именно эта деталь является связующим звеном между генератором и аккумулятором, которое передаёт энергию из одного узла в другой. Простыми словами, если ремень используется не полностью, то заряд аккумулятора падает.
Если из-под капота вашего транспортного средства вдруг идёт непонятный свист, знайте, на растянутый ремень генератора попала вода. Это значит, что нужно его заменить и хорошо натянуть. Для этого понадобится ключ с трещёткой на 17 и накидной ключ на 19.
Как натянуть ремень генератора ВАЗ 2121
1. Откройте капот и открутите гайку, которая крепит генератор и пластину натяжителя.
2. Не сильно ослабьте гайку крепления.

3. Теперь можно натянуть ремень. Делается это так: берётесь рукой за гайку натяжителя и двигаете генератор вниз. Если Вы будете двигать его вверх, то ремень наоборот будет послабляться.

4. Когда будет найдено правильно положение – закрутите гайку натяжителя. 5. Затягиваем нижний болт и заводим двигатель. Если слышны посторонние шумы или видно, что ремень проскальзывает, нужно повторить процедуру.

6. Тестирование необходимо проводить с максимальным количеством включённых электроприбором. 7. Если в таком случае аккумулятор выдаёт не менее 13 Вольт, то всё сделано правильно.
Многие водители переусердствуют и слишком сильно натягивают ремень, забывая о том, что это может привести к плохим последствиям. Среди них – растягивание ремня и как следствие слёт, износ подшипника
Внимательно относитесь к своему автомобилю и обращайте внимание на посторонние звуки. Напомним, что в предыдущей статье мы рассказывали
Перенос генератора наверх 21214 чертеж
Niva – это отличный отечественный внедорожник, который способен составить достойную конкуренцию современным джипам. ВАЗ 21214 получил прочный корпус, мощную силовую установку и надежную подвеску. Как и у любого автомобиля есть свои недостатки. К ним относится расположение генератора – агрегат установлен в нижней части кузова. При испытании на прочность по лесным и горным местностям в него попадают грязь, песок, вода. Еще один неприятный момент заключается в том, что на узел постоянно капает охлаждающая жидкость.
Решить проблему можно при помощи переноса генератора наверх.
Изучив эту статью, вы узнаете:
- Что нужно для переноса генератора наверх.
- Как проходит процесс для авто с ГУР и без него.
- Стоит ли покупать новый агрегат для ВАЗ 21214.

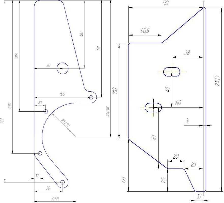
Внимательно изучите этот чертеж. Автор решил сделать своими руками кронштейн для переноса генератора. Деталь изготавливается из металла, толщина которого должна быть 4 мм, а ширина и длина – 80 мм. Чтобы собрать кронштейн, вам понадобятся детали от других отечественных авто:
- Ремень 6РК1290;
- Регулировочная планка;
- Шкив коленвала от десятки.
Фото, детали изготовленного кронштейна 21214:
Как видно на фото, штатный вентилятор установлен на шкиве помпы от ГАЗ 3110, так же мы берем штив коленчатого вала от 2110 и ремень марки 6РК1290. Генератор должен быть расположен в верхней левой части. Сверху его необходимо прикрепить при помощи болта M8 ГБЦ, спереди используются штатные болт и шпильки. Для фиксации кронштейн необходимо закрепить дополнительной контргайкой.

Этот чертеж переноса генератора отличается от первого тем, что здесь используется ремень с размером 1375 мм. Здесь меньше действий, но придется поработать болгаркой – необходимо уменьшить плоскость на головке, расположенной в районе M8 болта.

Для передней крышки понадобятся новые болты и шпильки. Этот чертеж кронштейна для крепления генератора подойдет и для других моделей, к примеру, для 21213.
Чертеж, предлагает переместить генератор на место гидроусилителя. Чтобы сделать это, нужно изготовить кронштейн и установить его рядом с ГУР. Вам необходимо заранее подобрать шайбы под уши кронштейна.

В этом варианте используется ремень с размером 1220 мм
Важно, угол его клина должен быть точно 40 градусов. Отличным решением будет покупка ремня с ЗИЛ 157
Обратный же рукав имеет длину по центрам размером 1115 миллиметров, а напорные же рукава высокого давления – 1450 мм. Внимательно проверяйте все размеры, помните поговорку 7 раз отмерь один раз отрежь, ошибки тут не нужны. Штатного отверстия для этих шлангов в правом кожухе нет, Поэтому его придется брать и резать самостоятельно.
Сам кронштейн для переноса устройства наверх выполняется по этому чертежу:
Насос необходимо перевернуть вверх ногами, чтобы генератор полностью вошел. Выглядит результат переноса вот так:

Если опыта в проведении подобных модернизаций у вас не много, то можно купить уже готовый комплект. В него будет входить новый кронштейн для Нивы и необходимые крепления. Отзывы автомобилистов говорят о том, что стоимость этой простой детали слишком завышена.
Ставить ли более мощный агрегат выработки тока?
Выше мы уже рассказали, по каким причинам агрегат быстро изнашивается. Отличное решение – это установка нового генератора. Еще одна распространенная причина – это установка внештатного оборудования, которое потребляет много электроэнергии. Силы тока стандартного агрегата не всегда хватает, поэтому стоит задуматься об установке более мощного генератора.
Модель зависит от года выпуска автомобиля и мотора. К примеру, на первых Нивах с силовой установкой 1.6 стоит устройство с вынесенным регулятором, которое использовалось еще в «классике». В более современных машинах регулятор уже встроен.
Если вы хотите купить внештатное устройство, то разумно будет взять от Шевроле 2003 модельного года. Подбор необходимо выполнять по каталожным номерам и параметрам, которые присутствуют в этой таблице:

Если вы можете доработать крепления своими руками, то список доступных гeHepaTopoB может существенно расшириться. Умельцы даже ставят устройства от иномарок.
В любом случае, стоит стремиться к модернизации и улучшению своего автомобиля. И это касается не только электроэнергии. Нива – это надежный внедорожник, но он сильно отстает по показателям комфорта от иностранных конкурентов. К этому вопросу можно переходить сразу после улучшения технической составляющей автомобиля.





















































